Ballinamore Bridge, Ballinalsole, Co. Galway
Ballinamore Bridge, Ballinalsole, Co. Galway
Price
P.O.A.
Type
Site
Status
For Sale
BEDROOMS
4
BATHROOMS
2
Size
211.45sq. m
0.75 acres












Description
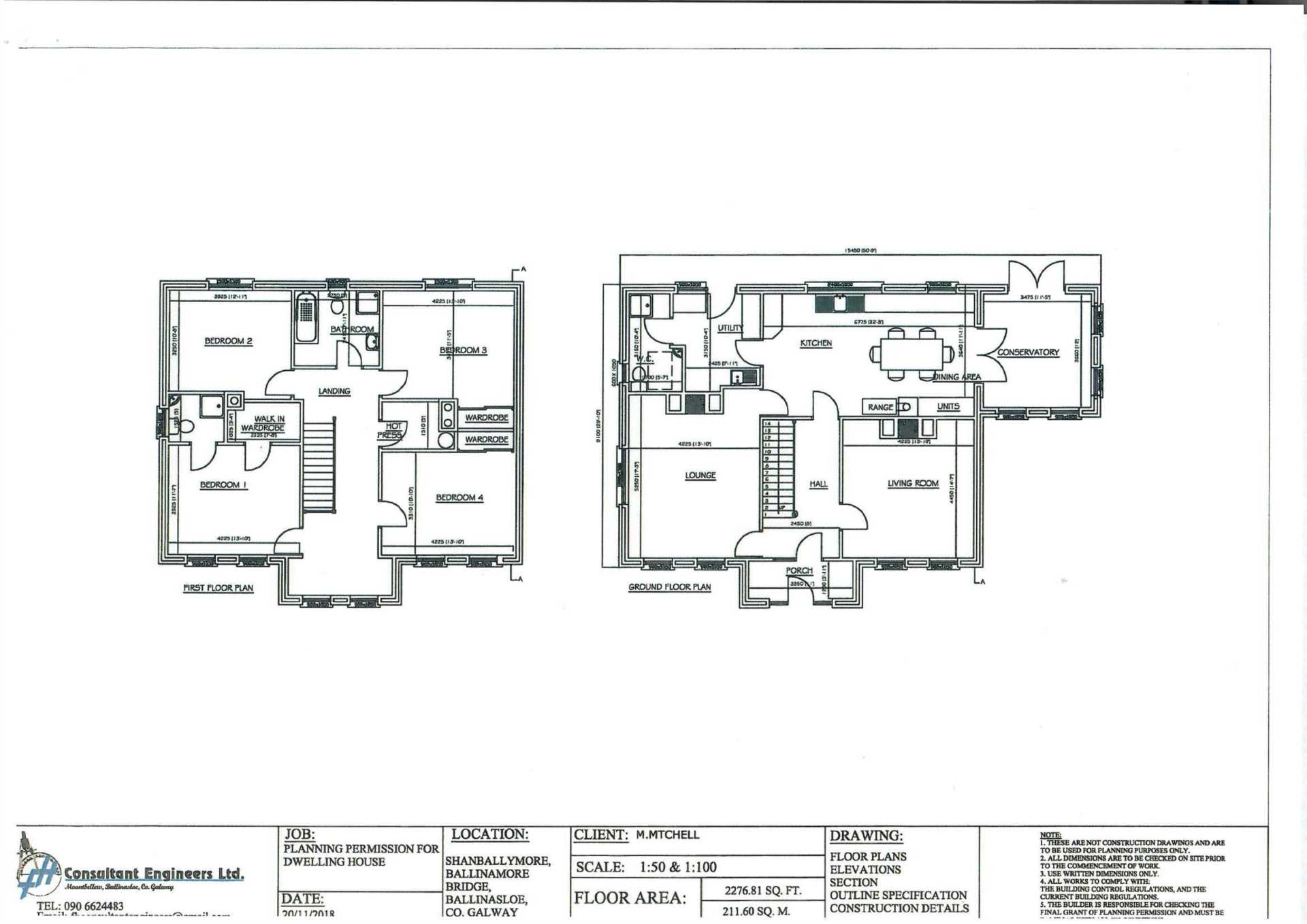
C. 0.75 Acre Residential Site with Full Planning Permission for a four bed, two storey house. Internal floor area c.2,276 sq. ft. and detached garage (c.640 sq. ft.). Located approximately 1.7 km from the main N63 Galway Route in the townland of Shanballymore, Ballinamore Bridge, Co. Galway. The towns of Ballygar & Newbridge are a mere 5km away with Mountbellew approx. 12km.
The site is in a good residential area with a choice of National & Secondary schools in the general area and all amenities under a 10 minute drive.
Contact Deirdre for further details, copy Planning Permission and to arrange viewing.
Features
- Full Planning Permission for a four bed, two storey residence with detached garage
- Good location c. 5km from Ballygar & Newbridge & c. 12 km from Mountbellew
- Under 1 hour from Galway City
- Daily buses servicing all stops along the N63 to Galway
- Choice of National & secondary schools in the general area
- Residence c. 2,276 sq. ft. (211 sq. m.) Garage c. 642 sq. ft (59 sq. m.)
- Beautiful house design with stone porch
- Conservatory to side
Accommodation
LAYOUT INCLUDES
Porch to front
Lounge
Left of reception hallway
Living Room
To the right of the reception hallway
Kitchen/Dining Room
Utility Room
Guest WC
Conservatory
First Floor
Bedroom One (Master Ensuite)
Located to the front with walk-in wardrobe and ensuite bathroom
Ensuite Bathroom
Bedroom Two
Bedroom Three
With built-in wardrobes
Bedroom Four
With built-in wardrobes
Family Bathroom
TOTAL INTERNAL AREA
2,276.81 SQ FT (211.60 SQ M)
Ballinamore Bridge Neighbourhood Guide
Explore prices, growth, people and lifestyle in Ballinamore Bridge



