Patch, Glenamaddy, Co. Galway
Patch, Glenamaddy, Co. Galway
Price
€25,000
Type
Site
Status
For Sale
BATHROOMS
3
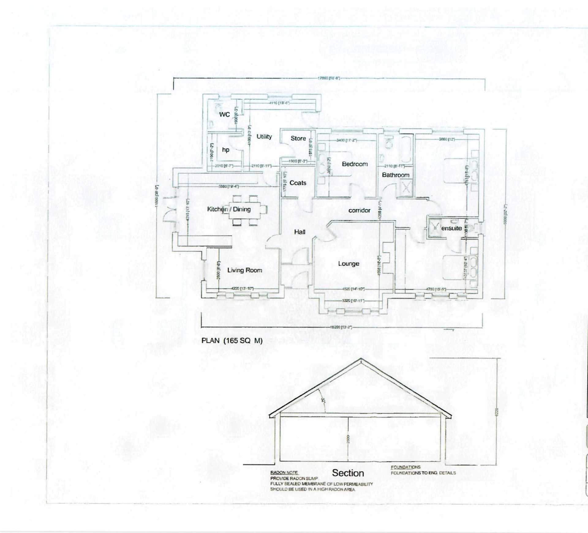
Size
165sq. m
0.61 acres












Description
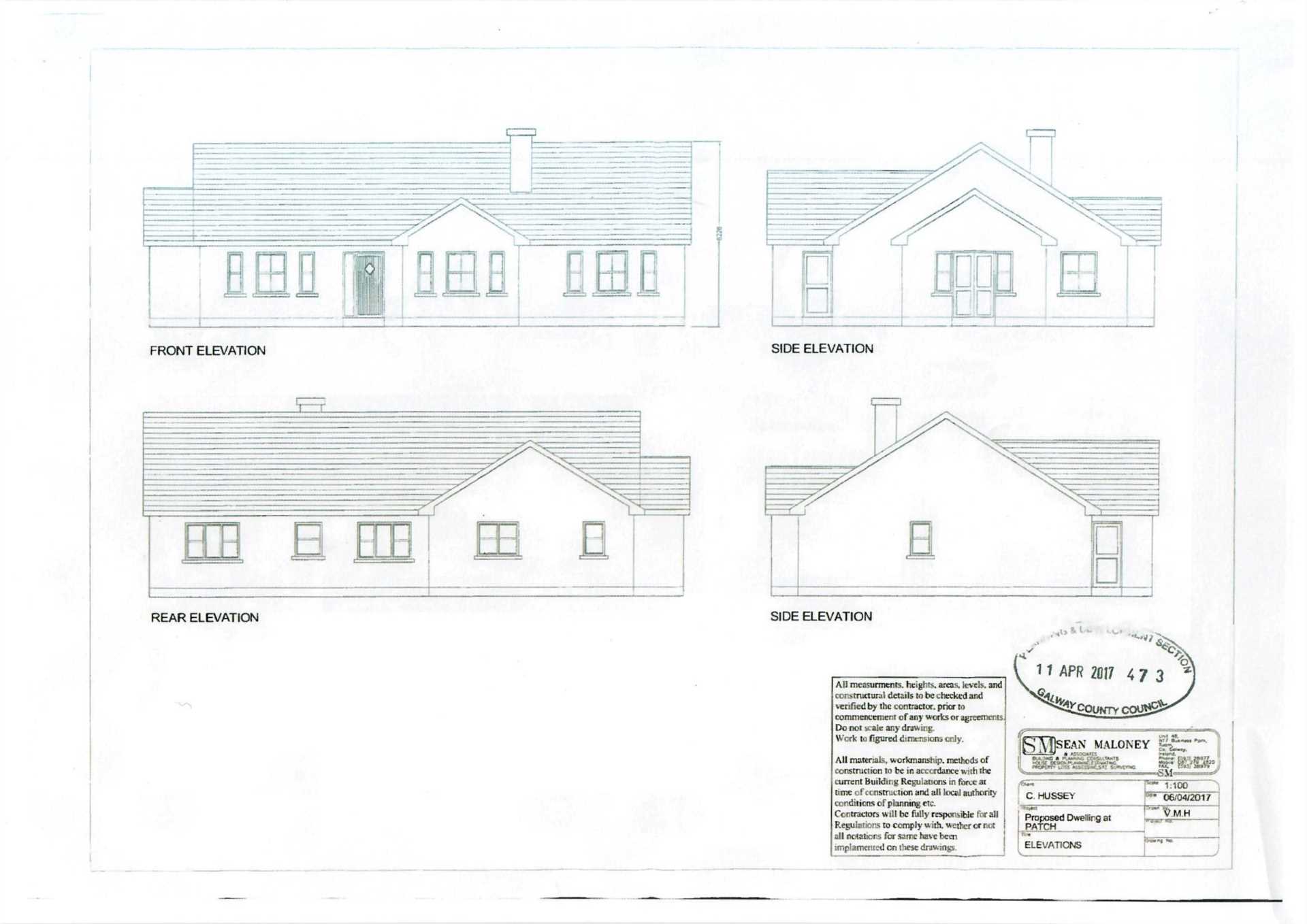
C.0.61 Acre elevated site located approximately 5 km from the town of Glenamaddy and 3.8 km from Clonbern. The towns of Kilkerrin and Dunmore are c.8 km & 12km respectively. The site previously had Full Planning Permission granted for a 3-bed / 3-bathroom Dormer Bungalow, C. 1,776 sq. ft. (165 sq.m.) with detached garage C. 635 sq. ft. (59 sq. m.), which has just run out at the end of 2022 and can be easily re-applied for.
Previous planning ref: 17/473.
Contact Deirdre for copy of house plans and site maps and to arrange viewing on 086 171 3417 or sales@bradleyhomes.ie
Features
- Planning previously granted for spacious 3 Bed Dormer with detached garage
- Good location c. 3.8km from Glenamaddy, c. 5km from Glenamaddy
- Good elevated dry site of c. 0.61 acres
- Water & electricity to front road
- Approximately 1 hour drive to Galway City
- Previous Planning Ref 17/473
Glenamaddy Neighbourhood Guide
Explore prices, growth, people and lifestyle in Glenamaddy



